Používame cookies

Súbory cookie a ďalšie technológie sledovania používame na zlepšenie vášho zážitku z prehliadania našich webových stránok, na to, aby sme vám zobrazovali prispôsobený obsah a cielené reklamy, na analýzu návštevnosti našich webových stránok a na pochopenie toho, odkiaľ naši návštevníci prichádzajú. Viac info

Predaj - Rodinné domy v modernom rezidenčnom projekte v obci Láb – okr. Malacky
100 m2 - Láb

Typ: Predaj
Obec: Láb
Stav: novostavba
Počet izieb: 3
Celková plocha: 100 m2
Úžitková plocha: 76 m2
Zariadenie: nezariadený
Garáž: nie
225 000 €

Popis nehnuteľnosti

Z poverenia majiteľa, ponúkame na predaj  3 a 4 izbové rodinné domy v modernom rezidenčnom projekte v obci Láb
Príjemné bývanie v rodinných dvojdomoch


V obci je kompletná občianska vybavenosť – základná a materská škola, zdravotne stredisko, lekáreň, pošta, futbalové ihrisko, multifunkčne ihrisko, obchody, reštaurácie.
Vzdialenosť od Bratislavy 25km, od Malaciek 10km
Obec  obklopená prírodou a jazerami, ktoré poskytujú množstvo voľnočasových aktivít. 

3D prezentácia rodinného domu         
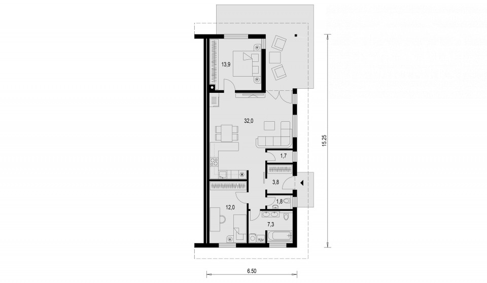
- Dom 6A / Wariant 521 – 4 izbový  

Cena nehnuteľnosti s DPH 

Dom 6A / Wariant 521 – 4 izbový 
Úžitková plocha: 97,4m2
Obytná plocha: 64,6m2
Zastavaná plocha: 56,6m2
Plocha pozemku: 327m2, 

Cena:  225 000,00 EUR
Vyhotovenie v štádiu holodom

Štandard dokončenia rodinného domu : komplet dokončený interiér (bez kuchyne)

- tehla HELUZ PLUS 25 brúsená hr. 250 mm so zateplením EPS polystyrénom hr. 180 mm, konečná úprava fasády – silikonová omietka, kamenný obklad-
- vnútorné deliace priečky z tehál HELUZ hr. 115 mm
- komín šamotový HELUZ – príprava na krb
- okná a dvere plastové s izolačným trojsklom (aluplast IDEAL 8000) biele
- vonkajší parapet hliníkový biely, vnútorný plastový biely,
- príprava na vonkajšie žalúzie na el. pohon
- vnútorné omietky sadrové, 2x maľba bielej farby
- celková hrúbka skladby podlahy 250mm (160mm tep. izolácia, 60mm betónový poter, hydroizolácia proti zemnej vlhkosti  2x hydrobit VS60 S35)
- drevené podlahy s odolných parkiet, v kúpeľni, WC a predsieni keramická veľkoformátová dlažba
- kúpeľňa, WC veľkoformátové obklady, komplet zariadene, podomietková batéria
- interiérové dvere bielej farby (posuvný systém v predsieni)
- strecha z poplastovaného plechu v antracitovej farbe
- strešné žľaby a zvody z poplastovaného plechu farba antracit
- strešná konštrukcia – drevený krov, plne debnenie pod krytinou
- tepelná izolácia v strope hr. 320 mm, parozabrana
- stropy so sadrokartónu, 2x maľba bielej farby, výklopné stropné schody na povalu
- podlahové elektrické kúrenie, elektrický ohrev TÚV
- kompletná elektroinštalácia a bleskozvod
- svietidla, vypináče, audiovrátnik
- kabeláž na zabezpečovací systém
- internet optický kábel
- príprava na klimatizáciu
- všetky vonkajšie prípojky s revíznymi šachtami a samostatným meraním
- chodníky a terasa so zámkovej dlažby,
- oplotenie pozemku poplastovaným pletivom,
- oplotenie od ulice: bránička s audiovrátnikom, kovová lamelová výplň antracitovej farby
- plocha na parkovanie zo zatravňovacích tvárnic
- odkvapové chodníky po obvode domu s guľatého kameňa fr. 32 - 64 mm
- trativody ku všetkým strešným zvodom
- v záhrade upravený a zarovnaný terén

 

Odmenu realitnej kancelárii neplatíte.
Viac info, dohodnutie obhliadky v realitnej kancelárii

Viac o mojej práci si prečítajte na www.karinpartners.sk/adrianova

Kontakt: Adrianová
Telefón: 0948 056 115
adrianova@karinpartners.sk

Virtuálna prehliadka

Hypotekárna kalkulačka

Podobné nehnuteľnosti, ktoré by Vás mohli zaujímať