
- OBCHODNÉ PRIESTORY
Prenájom – Obchodné priestory 265 m2 a 334 m2 v Starom meste – BA I.
Bratislava-Staré Mesto
- 265 m2
Typ: | Prenájom |
---|---|
Ulica: | Obrancov mieru |
Obec: | Skalica |
Celková plocha: | 316 m2 |
---|---|
Úžitková plocha: | 290 m2 |
KARIN & PARTNERS Vám vo výhradnom zastúpení majiteľa ponúka na prenájom jedinečný objekt na podnikanie vo výbornej lokalite. Budova sa nachádza na sídlisku SNP, obklopená rodinnými, bytovými domami a garážami. Ponúka veľkú plochu na podnikanie, skladové priestory, sociálne zariadenia a nakladaciu rampu z dvora, kde je prístup z 4 brán a 3 ulíc. Vďaka tomu umožňuje širokú škálu podnikania buď ako predajňa so skladovými priestormi, reštaurácia, kaviareň, kancelárie či iné služby ako napr. lekári, ambulancie. Majiteľ umožňuje dať do prenájmu aj iba časť z budovy.
VÝMERA
Vnútorná úžitková plocha v budove je 290 m2, z toho 116 m2 predstavuje skladová plocha. Z vonkajšej časti budovy sa nachádzajú dve nakladacie rampy s celkovou výmerou 24 m2. Pozemok dvora má 676 m2.
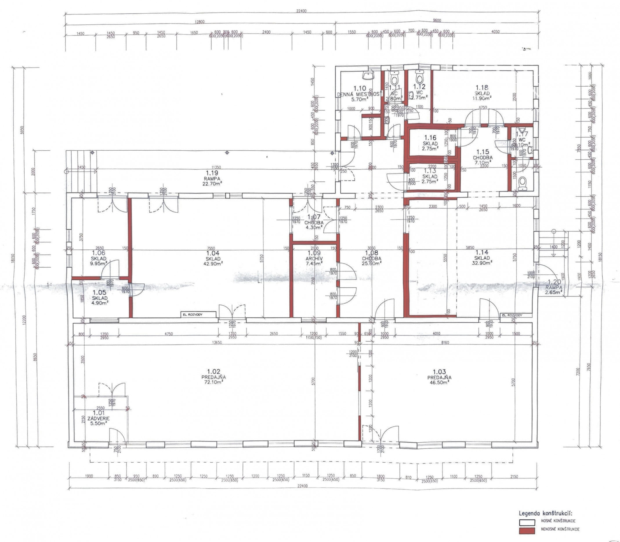
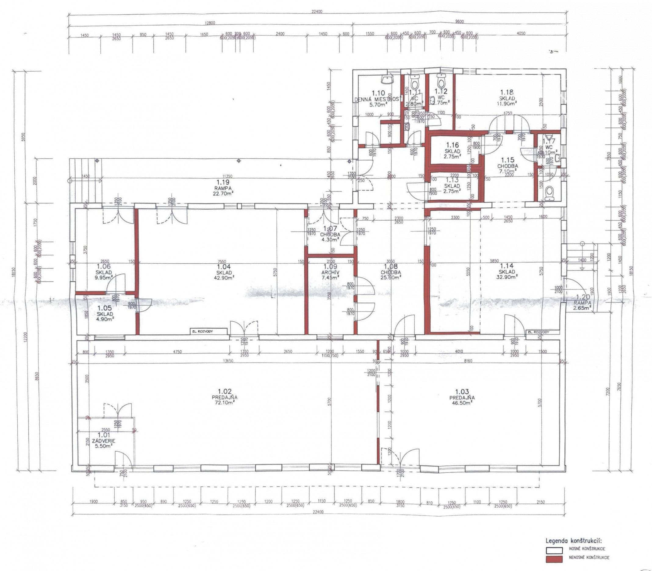
DISPOZIČNÉ RIEŠENIE
Pre detailný prehľad dispozície pozrite pôdorys vo fotkách inzerátu. Červenou farbou sú označené nenosné steny, vďaka čomu je možné predelenia miestností zrušiť a priestor otvoriť. Do skladových priestorov je prístup z dvoch dverí veľkej nakladacej rampy, z ďalších dvoch je zriadený prístup do chodby. Z menšej bočnej rampy sa dá dostať do druhého skladovacieho priestoru.
OBJEKT A VYBAVENIE
Budova je jednopodlažná bez pivnice, s rovnou strechou. Bola zateplená z prednej vstupnej časti s novou fasádou a má vymenené vstupné dvere a okná z tejto prednej časti. Bola taktiež vymenená strecha. Vedľa tejto prednej časti je vstup do dvora s diaľkovo otváracou bránou. Dvor je vybetónovaný pre možnosti parkovania alebo prístup zásobovacích vozidiel. V zadnej časti dvora za budovou sú ďalšie dve bočné brány, jedna naľavo, druhá napravo.
Budova je napojená na všetky inžinierske siete: vodovod, kanalizáciu, elektrinu aj plyn.
PARKOVANIE
Parkovanie je umožnené priamo v dvore na pozemku budovy alebo v prednej časti priamo pred vstupom na väčšom parkovisku.
LOKALITA
Budova sa nachádza hneď pri sídlisku SNP, na ulici Obrancov mieru. Mesto Skalica ponúka plnú občiansku vybavenosť.
VÝHODY
- možnosť odkúpenia celej budovy
- úžitková plocha budovy so skladmi
- veľký dvor pre zásobovanie alebo parkovanie
- veľká parkovacia plocha pred budovou
- vynikajúca lokalita v tesnej blízkosti veľa bytov a domov
- nakladacie rampy
- elektrická brána
- zateplenie prednej časti s novou fasádou, vymenenými oknami a vstupnými dverami + nová strecha
CENA
Info v RK.
V cene sú zahrnuté:
- komplexné právne a katastrálne služby spojené s prevodom nehnuteľnosti vrátane poplatku za kataster; ich rozsah tu: https://www.karinpartners.sk/pravne-sluzby
- profesionálne a rýchle vybavenie hypotekárneho úveru; rozsah fin. služieb tu: https://www.karinpartners.sk/financne-sluzby
KONTAKT:
Ing. Enriko Fischer | Asistentka
+421 908 837 457
fischer@karinpartners.sk
Viac o práci makléra si prečítate na www.karinpartners.sk/fischer