Používame cookies

Súbory cookie a ďalšie technológie sledovania používame na zlepšenie vášho zážitku z prehliadania našich webových stránok, na to, aby sme vám zobrazovali prispôsobený obsah a cielené reklamy, na analýzu návštevnosti našich webových stránok a na pochopenie toho, odkiaľ naši návštevníci prichádzajú. Viac info

REZERVOVANÉ: 5i rodinný dom po rekonštrukcii v obci Brodské
163 m2 - Brodské

  • Galeria
  • Mapa
Typ: Predaj
Ulica: M. Čulena
Obec: Brodské
Počet izieb: 5
Cena v RK

Popis nehnuteľnosti

5i. dom | rekonštrukcia | pozemok | príroda

Realitná kancelária KARIN&PARTNERS ponúka exkluzívne na predaj 5 izbový poschodový zabývaný rodinný dom s veľkým pozemkom okrajovej časti obce Brodské po kompletnej rekonštrukcii

- pôvodný dom (zo škvárobetónu) bol kompletne zrekonštruovaný v priebehu rokov 2003-2006, zachované ostali iba nosné steny. Nová elektrika, rozvody vody a odpadu, plastové okná, strecha Tondach. Dom zateplený 5cm polystyrénom, zateplená povala.

- čiastočne podpivničený

- výmera pozemku: 1181m2 (z toho zastavaná plocha domua 114m2)

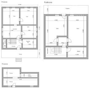
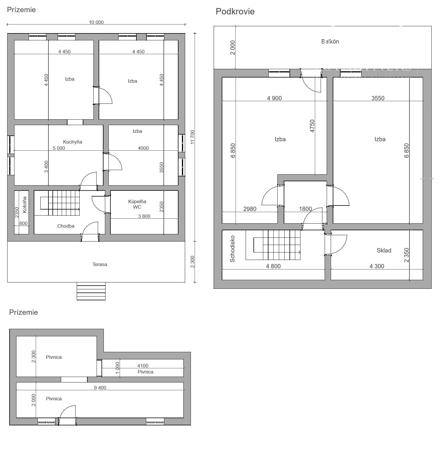
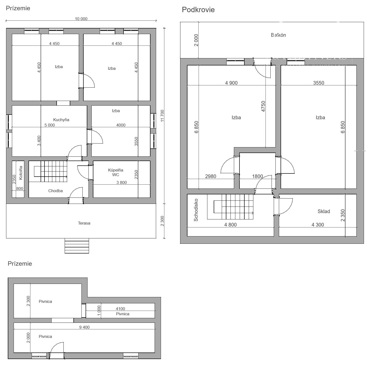
- dispozícia prízemia: predsieň so schodiskom na poschodie, kúpeľňa so sprchovým kútom a vaňou a WC, technická miestnosť/špajza, obývačka prepojená "interiérovým oknom" s kuchyňou a jedálňou, detstká izba, spálňa

- dispozícia poschodia: chodba, dve veľké podkrovné izby (z jednej výstup na loggiu), miestnosť predpripravená na druhú kúpeľňu

- terasa v zadnej časti domu, bazén a sklenník na záhrade, z bočnej strany zastrešený prístrešok na bicykle, šopa/dielňa

- vykurovanie domu plynovým kotlom (radiátory), v obývacej izbe elektrický krb s možnosťou dokurovania

- odpad vedený do spádovej kanalizácie

- kopaná 7m studňa na pozemku s čerpadlom a napojením do kúpeľne (splachovanie WC, práčka). Obecná voda v kuchyni. Možnosť využívať oba zdroje vody

- inžinierske siete: elektrina (aj 380V), obecná voda, plyn, kanalizácia

- veľká murovaná garáž, možnosť parkovať ďalšie autá pred domom alebo vo vjazde za kovanou bránou (s predprípravou na elekt.pohon)

- záhradný dom / ďalšia bytová jednotka s dvomi miestnosťami a kúpelňou/WC. Vhodné aj na podnikanie

- v blízkosti domu železničná stanica Brodské (700m), cyklotrasa, lesy, rieka Morava, hraničný prechod do ČR. Napojenie na diaľnicu D2 vzdialený iba 8km (Kúty)

 

Maklér: Milan Polóny, 0903 11 22 55, polony@karinpartners.sk

V cene je zahrnutý kompletný profesionálny realitný servis - kúpna zmluva, kolok, návrh na vklad, odovzdanie nehnuteľnosti, ako aj realitné a finančné poradenstvo.

Financovanie nehnuteľnosti Vám bezplatne zabezpečíme podľa aktuálnych ponúk bánk, prostredníctvom našich certifikovaných finančných konzultantov s licenciou od NBS.

Podobné nehnuteľnosti, ktoré by Vás mohli zaujímať