
- INVESTIČNÁ PRÍLEŽITOSŤ
- BUDOVA
- BRATISLAVA I
Predaj - Historická budova v Starom meste - BA I
Bratislava-Staré Mesto
- 1056 m2
Typ: | Predaj |
---|---|
Ulica: | Borský Svätý Jur |
Obec: | Borský Svätý Jur |
Celková plocha: | 3125 m2 |
---|---|
Úžitková plocha: | 400 m2 |
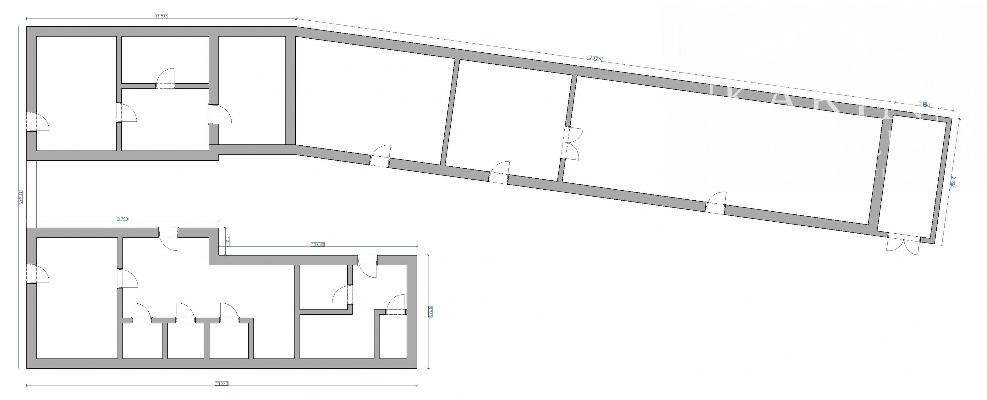
V exkluzívnom zastúpení majiteľa ponúka RK KARIN&PARTNERS na predaj starší rodinný dvojdom využívaný na podnikanie, s veľkým pozemkom.
- výmera pozemku s hlavnými budovami prístupným z ulice cez veľkú bránu: 1028m2
- výmera nezastavaného pozemku s prístupom zo zadnej ulice: 2097m2. Možnosť výstavby rodinných domov podľa aktuálnej ÚPI obce.
- celková výmera: 3125m2
- domy majú dve samostnatné súpisné čísla
- dve funkčné prevádzky prístupné priamo z ulice (vlastné sklady, WC, technické miestnosti - v minulosti využívané napr. aj ako mäsiarstvo)
- v zadnej časti domu väčšia miestnosť s dreveným obložením, v minulosti využívaná ako svadobná sála. Posledná miestnosť slúži ako garážová prístavba
- všetky inžinierske siete (voda, plyn, elektrina). Septik v zadnej časti domu (predĺžené napojenie na cisternu v prednej časti domu)
- prevádzky majú vlastné vodomery, plynomery aj elektromery
Maklér: Milan Polóny, 0903 11 22 55, polony@karinpartners.sk
V cene sú zahrnuté služby realitnej kancelárie /zmluvy, kataster, prepis energií, overenie podpisov/