
- INVESTIČNÁ PRÍLEŽITOSŤ
- BUDOVA
- BRATISLAVA I
Predaj - Historická budova v Starom meste - BA I
Bratislava-Staré Mesto
- 1056 m2
Typ: | Predaj |
---|---|
Ulica: | Ružinov |
Obec: | Bratislava-Ružinov |
Celková plocha: | 1057 m2 |
---|---|
Úžitková plocha: | 1057 m2 |
Ponúkame Vám na predaj budovu, ktorá sa nachádza v priemyselnej časti s prevažne nebytovými stavbami pre administratívu a služby s dobrými dopravnými napojeniami na obchvat mesta Bratislava.
V blízkosti objektu sa nachádza občianska vybavenosť.
Dostupnosť železničnej stanice Bratislava hl. stanica je do 40 min. pri použití MHD.
Dostupnosť na diaľnicu D1 resp. D2 je do 4 km.
Dostupnosť leteckej a lodnej dopravy je v rámci mesta Bratislava.
Dostupnosť miestnych úradov je do 20 min. pri použití MHD.
Základná obchodná sieť a služby sú dostupné.
Základná zdravotná starostlivosť, základné školy sú dostupné.
Nehnuteľnosť sa nachádza na rovinatom pozemku, prístupnom z verejnej komunikácie s možnosťou priameho vstupu z ulice.
Budova postavená v roku 2009 o výmere 1057m2 (ZPaN)
2 nadzemné podlažia
Vhodná na administratívu, ubytovňu, obchod, služby
Možná nadstavba 2 podlaží
Hala pre opravy a údržbu vozidiel, strojov a zariadení
Vhodná ako sklad
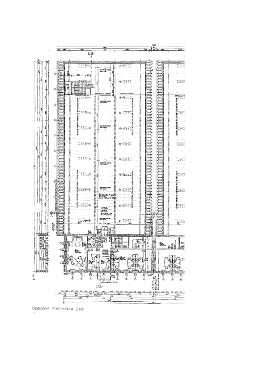
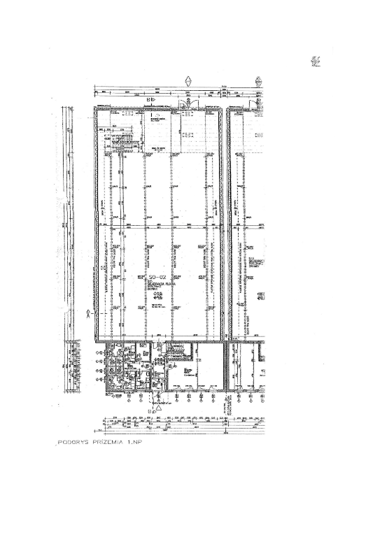
2 podlažia: chodby sklady, laboratórne priestory, sklady, montážna hala
Oplotený súkromný pozemok o výmere 778m2 a vedľajšia prístupová cesta
Parkovisko pred budovou
Dispozícia:
1/NP
2/NP
Vykurovanie je riešené kotlom ústredného kúrenia.
Kuchynka vybavená kuchynskou linkou s drezom a sporákom.
Budova je napojená na vodovodnú prípojku z verejných rozvodov vody, elektrickú prípojku na rozvody NN a kanalizačnú prípojku do žumpy.
Viac o mojej práci si prečítajte na www.karinpartners.sk/adrianova
Viac informácií, cena v RK
Kontakt: Edita Adrianová
Telefón: 0948 056 116
adrianova@karinpartners.sk