
- RODINNÉ SÍDLO
- SÍDLO FIRMY
Predaj – Rodinný dom na Hradnom kopci – Staré mesto BA I
Bratislava-Staré Mesto
- 6i
- 280 m2
- nie
Typ: | Predaj |
---|---|
Ulica: | Ráztočná |
Obec: | Bratislava-Vrakuňa |
Celková plocha: | 1200 m2 |
---|---|
Úžitková plocha: | 532 m2 |
moderné bývanie / kľudná - tichá časť BA / rekonštrukcia / terasa / záhrada
KARIN&PARTNERS ponúka na predaj 5 izbový, poschodový, novo zrekonštruovaný rodinný dom (2023) v tichej časti Bratislavy - časť Vrakuňa s veľkým pozemkom (1200m2) - z toho zastavná plocha domu 304m2.
- pôvodný dom z roku 2004 bol moderne prerobený, zväčšený a nadstavený o jedno podlažie v roku 2023
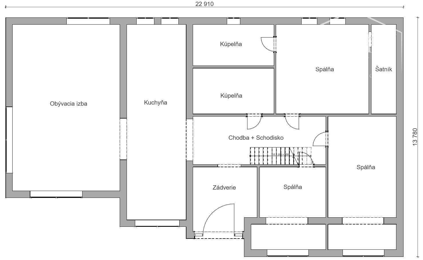
- dispozícia prízemia: vstupná chodba so šatníkom, chodba so schodiskom na 2.NP, kúpelňa s vaňou, 2 detské izby, spálňa s vlastnou kúpelňou (sprchový kút) a šatníkom, priestranná kuchyňa a veľká obývacia izba s výstupom na terasu a záhradu
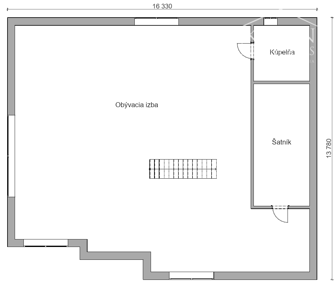
- dispozícia poschodia: rozľahlá obývacia miestnosť (154m2) s výstupom na priestrannú terasu (91,88m2), kúpelňa s WC, bidetom a umývadlom, veľký šatník. Keramická dlažba na celom poschodí
- dom je čiastočne podpivničený, časť pivnice slúži ako technická miestnosť s elektrickými kotlami (zvlášt pre každé poschodie) a bojlerom. Vstup do pivnice je pomocou vonkajšieho schodiska
- podlahové kúrenie elektrické v prízemí (kuchyňa, chodba) - podlahové kúrenie teplovodné na poschodí. Možnosť kúriť aj dvoma teplovzdušnými krbmi (teplo prenášané prieduchmi do vzdialenejšej časti miestnosti). V ostatných miestnostiach na prízemí kúrenie radiátormi.
- dve klimatizácie na prízemí, každá s vlastnou vonkajšou jednotkou. Na poschodí stropná klimatizácia s vlastnou vonk. jednotkou
- kompletne zariadená kuchyňa, rozvod plynu k varnej doske z plynových fľaší umiestnených v nike pri dome
- okná plastové s vonkajšími hliníkovými žalúziami na elektrické ovládanie
- pohybový alarm v dome
- vlastná studňa (10m hĺbka) s úžitkovou vodou, automatická závlaha trávnika v blízkosti terasy. Do domu je zavedená mestská voda.
- odpad vedený do veľkokapacitnej žumpy
- altánok s grilom a posedením pri dome
- veľká záhrada s bránou (predpríprava na elektrické otváranie)
- kompletná technická dokumentácia a znalecký posudok k dispozícii
- nábytok a zariadenie je po vzájomnej dohode s majiteľom domu
Dom postavený v okrajovej časti Bratislavy, v okolí sa nachádzajú polia, chaty ako aj novšia zástavba. Tichá a kľudná lokalita. Výhľad z terasy na Karpaty a panorámu Bratislavy. V blízkosti preteká Malý Dunaj
Virtuálna prehliadka prízemia: https://my.matterport.com/show/?m=m2jCTTNdgsE
Virtuálna prehliadka poschodia: https://my.matterport.com/show/?m=gp8nTzLjSRp
Možnosť predať dom za zvýhodnenú cenu aj bez pozemku vyznačeného na poslednej dronovej fotografii modrou čiarou o rozlohe 400m2
Maklér: Milan Polóny, certifikovaný realitný maklér a člen Realitnej Únie Slovenskej republiky
0903 11 22 55, polony@karinpartners.sk
V cene sú zahrnuté služby realitnej kancelárie /zmluvy, kataster, prepis energií, overenie podpisov/