
- Luxusný
HĽADÁME NA KÚPU 2 ALEBO 3 IZBOVÝ BYT
Senica
- 1i
- 55 m2
Typ: | Predaj |
---|---|
Typ bytu: | Mezonet |
Ulica: | Jantárová |
Obec: | Bratislava-Jarovce |
Počet izieb: | 5 |
---|---|
Celková plocha: | 219.95 m2 |
Úžitková plocha: | 219.95 m2 |
Hľadáte priestor pre Vaš nový byt, taký aký nemá nikto? Páčia sa Vám unikátne projekty s architektúrou prepájajúcou históriu so súčasnosťou? Potom ste už museli počuť o Dvoch Sýpkach s tehlovým exteriérom, čo tomuto projektu dáva špecifický charakter. V tomto prostredí je potešenie bývať.
Realitná kancelária KARIN & PARTNERS, Vám ponúka na predaj Výnimočný životný priestor v Novom Penthouse s veľkou loggiou, na Jantárovej ulici v mestskej časti Bratislava - Jarovce.
PENTHOUSE:
Tento priestranný a presvetlený byt je excelentný pre svoju atypickosť. Nikto iný nebude mať taký byt ako Vy.
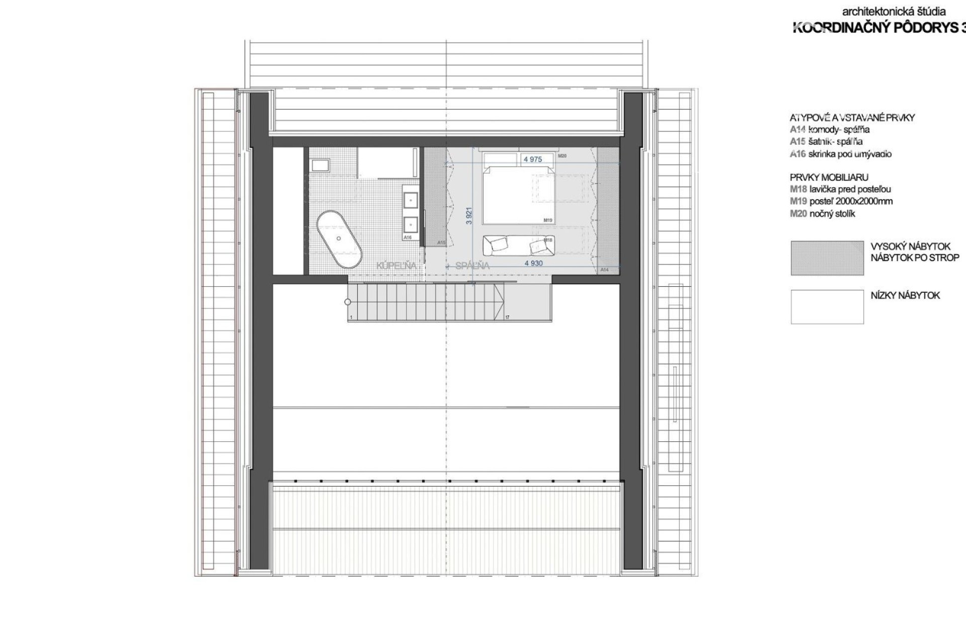
Je výnimočný svojimi veľkometrážnymi priestormi a dostatkom denného svetla prichádzajúceho cez veľké okná. Okrem interiéru s rozlohou 185,91 m2 disponuje aj priestrannou loggiou o veľkosti 34,04 m2, čo spolu vytvára 219,95 m2 životného priestoru.
Byt disponuje vstupnou chodbou s veľkým šatníkom, samostatným WC, technickou miestnosťou, pracovňou a vstupom do hlavnéj časti bytu, kde sa nachádza otvorený preistor s kuchyňou, jedálňou a obývacou izbou so vstupom na loggiu. Nachádzajú sa tu dve samostatné spálne a dve samostatné kúpeľňe. Schodni sa dostanete na horné poschodie, kde sa nachádza priestranná spálňa s kúpeľňou.
Penthouse sa nachádza na druhom poschodí s výťahom a predáva sa v stave ako je na fotkách.
Pod Dvoma sýpkami sú vybudované nadštandardné podzemné garáže s nadrozmernými parkovacími miestami nielen pre obyvateľov, ale aj pre návštevy a zákazníkov, pre ktorých je vyhradené oddelené verejné parkovisko.
Lokalita:
Penthouse sa nachádza v projekte Dve Sýpky v pokojnom prostredí mestskej časti Bratislava – Jarovce, ktorá poskytuje kompletnú občiansku vybavenosť. Lokalita obklopená prírodou je mimo priameho ruchu mesta, ale vďaka výbornej dostupnosti je centrum na dosah. Autobusová zástavka je priamo pri vstupe do objektu. Napr. na Autobusovú stanicu Nivy sa vlastným automobilom dostanete iba za cca 12 minút.
Úžitková plocha: 185,91 m2 + 34,04 m2 (loggia), spolu: 219,95 m2
Cena za Penthouse: 1.023.975 € (v cene sú zahrnuté 2 x parkovacie miesto + 1x skladová kobka)
V cene sú zahrnuté služby RK: komplexný právny servis - vypracovanie všetkých druhov zmlúv potrebných k predaju, poplatok za overenie podpisov na kúpnych zmluvách, správny poplatok za vklad do katastra nehnuteľností, odovzdanie nehnuteľnosti.
Pre našich klientov poskytujeme osobný a profesionálny prístup pri predaji, rýchlosť a znalosť trhu. Pomôžeme Vám s predajom, prenájmom alebo kúpou Vašej novej nehnuteľnosti. Zároveň vieme sprostredkovať finančné služby v oblasti hypoték. V prípade vážneho záujmu ma neváhajte kontaktovať.
Fotografie a text sú autorským dielom spoločnosti KARIN & PARTNERS.