Používame cookies

Súbory cookie a ďalšie technológie sledovania používame na zlepšenie vášho zážitku z prehliadania našich webových stránok, na to, aby sme vám zobrazovali prispôsobený obsah a cielené reklamy, na analýzu návštevnosti našich webových stránok a na pochopenie toho, odkiaľ naši návštevníci prichádzajú. Viac info

NA PREDAJ: Rodinný dom 5i, dvojgaráž, novostavba, Nové Zámky
256 m2 - Nové Zámky

  • Galeria
  • Mapa
Typ: Predaj
Obec: Nové Zámky
Počet izieb: 5
Celková plocha: 256 m2
Úžitková plocha: 256 m2
370 000 €

Popis nehnuteľnosti

NA PREDAJ: Exkluzívny rodinný dom 5izbový, dvojgaráž, novostavba, Nové Zámky

ZÁKLADNÉ ÚDAJE:

  • - Pozemok: 625m2
  • - Zastavaná plocha: 256m2
  • - Podlahová plocha: 211m2
  • - Plocha dvojgaráže: 42m2
  • - IS: Vodovod, elektrina, kanalizácia
  • - Materiál tehla

Jednopodlažný rodinný dom s rovnou strechou je situovaný, ako samostatne stajaci na pozemku s výmerou 625m2, s prístupom po spevnenej komunikácii v novovytvorenej uličnej zástavbe.

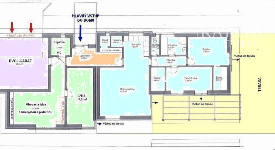
DISPOZÍCIA:

Vstup do domu je riešený do vstupného zádveria z ktorého sa vstupuje do dvoch strán domu: jedna časť je 3izbová a druhá časť je 2izbová. Dispozičné riešenie je zrejmé z pôdorysného plánu. Obidve časti majú svoje kompletné vybavenie na samostatné nezávislé fungovanie: obytné izby, každá časť ma vlastné sanitárne priestory - kúpelne a WC, vlastné priestory kuchyne a jedálne:

  • 2 IZBOVÁ ČASŤ, výmera 64m2: spoločné vstupné zádverie, chodba, vstup do dvojgaráže, kúpeľňa so sprchovým kútom a s WC, obývacia hala s kuchynskou linkou a jedálňou, spálňa s výstupom na terasu  
  • v tejto časti je kuchynská linka vybavená všetkými vstavanými spotrebičmi, okrem umývačky riadu

--------------------------------

  • 3 IZBOVÁ ČASŤ, výmera 105m2: spoločné vstupné zádverie, predsieň s integrovaným šatníkom prekrytým posuvnými dverami, obývacia hala s kuchynskou linkou a jedálenskou časťou / z kuchyne je prístup do príručnej špajzy /, ďalej je tam chodba s podlahovým osvetlením, z ktorej je prístup do všetkých ďalších priestorov: kúpeľňe s vaňou a sprchovacím kútom, do samostatného WC, do detskej izby a do spálne. V izbách sú terasové dvere s výstupom do dvora resp. na terasu. 
  • v tejto časti je kuchynská linka vybavená všetkými vstavanými spotrebičmi, vrátane umývačky riadu a vstavaného kávovaru 

--------------------------------

  • Dvojgaráž, výmera 42m2 - garážové státie pre dve autá + skladový priestor s regálmi

ĎALŠIE TECHNICKÉ INFORMÁCIE:

  • - okná sú plastové s izolačným trojsklom s vnútornými žalúziami
  • - povrchy podláh sú plávajúce laminátové podlahy a keramické dlažby 
  • - vykurovanie je riešené elektrickými konvektormi v počte 8ks
  • - doplnkovo sa používa na kúrenie / chladenie aj klimatizačná jednotka
  • - v dome je rozvod rekuperácie
  • - elektroinštalácia je svetelná, aj motorická
  • - dom má bleskozvod
  • - inštalovaný je aj televízny rozvod po izbách a elektrický vrátnik
  • - stropy v dome sú riešené sadrokartónom a v izbách sú inštalované rôzne tvarované sadrokartónové podhľady s podsvietením

Kolaudácia prvej časti domu bola v roku 2013, dostavba druhej časti a dvojgaráže bola dokončená v roku 2020. Dvor je upravený zhutneným zásypom, zatrávnením, okrasnou zeleňou, spevnenými plochami. Jednou z dominánt tejto nehnuteľnosti je aj veľká vydláždená terasa v tvare L s výmerou cca.86m2, na ktorej je možné v budúcnosti vybudovať zimnú záhradu /napr. plastovú, drevenú či hliníkovú vo velkosti zastrešenej plochy cca.20-40m2/ a ešte viac tak zatraktívniť, krásny priestor jej terajšej otvorenej podoby.   

Dispozičné riešenie rodinného domu, ho predurčuje na využitie nielen pre jednu kompaktnú viacčlennú rodinu, ale vďaka zaujímavému členneniu je vhodný aj na tzv. oddelené dvojgeneračné bývanie /rodičia vs. dospievajúce deti, rodina vs. rodičia na dôchodku, rodičia vs. mladá rodina s dieťaťom, prípadne rodina vs. podnájom pre 2osoby... a podobne/.

Cena: 370.000,- Euro 

V cene sú zahrnuté služby RK: komplexný právny servis - vypracovanie všetkých druhov zmlúv potrebných k predaju, poplatok za overenie podpisov na kúpnych zmluvách, správny poplatok za vklad do katastra nehnuteľností, odovzdanie nehnuteľnosti.

Pre našich klientov poskytujeme osobný a profesionálny prístup pri predaji, rýchlosť a znalosť trhu. Pomôžeme  Vám s predajom, prenájmom alebo kúpou Vašej novej nehnuteľnosti, vypracujeme Vám odhad hodnoty nehnuteľnosti za účelom dedičského konania k notárovi. Zároveň vieme sprostredkovať finančné služby v oblasti hypotékárnych úverov. V prípade vážneho záujmu nás neváhajte kontaktovať.

Fotografie a text sú autorským dielom spoločnosti KARIN & PARTNERS.

KONTAKT K OBHLIADKE:
Ing. Ľubomír Klučiar
+421 905 854286
kluciar.l@karinpartners.sk

V prípade viacerých záujemcov si majiteľ vyhradzuje právo zvoliť najvýhodnejšiu ponuku.

Hypotekárna kalkulačka

Podobné nehnuteľnosti, ktoré by Vás mohli zaujímať